
Riyadh, Saudi Arabia
2009 - 2018
Institute of Diplomatic Studies
A continuation of our design for Riyadh’s Ministry of Foreign Affairs, the Institute of Diplomatic Studies brings diplomatic education and consular affairs together in one cohesive, unique space.
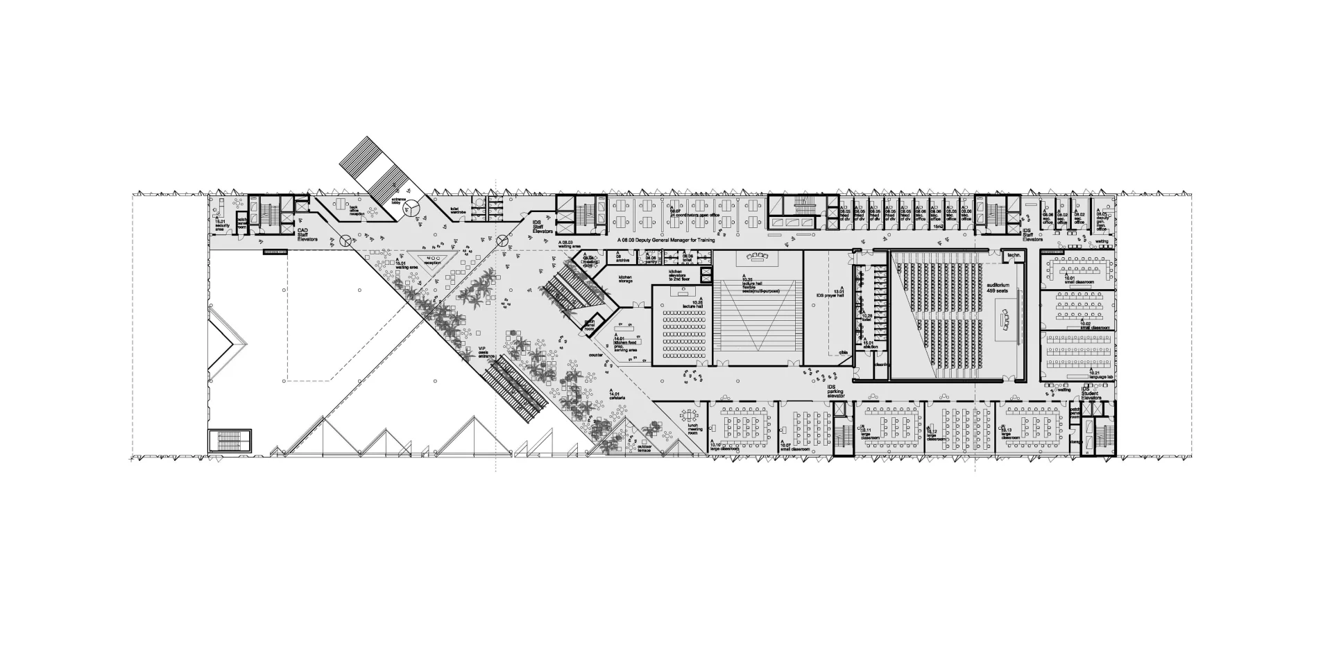
Expanding upon Saudi Arabia's Ministry of Foreign Affairs campus, the Institute of Diplomatic Studies was designed to house two distinct institutions: the Institute of Diplomatic Studies (IDS) and the Consular Affairs Department. The institute responds architecturally to the neighboring ministry, their shared limestone facades creating a sense of continuity across the campus. At 46,000 m2, it accommodates an auditorium, lecture halls, a library, classrooms, offices, a visa applicants' hall, a cafeteria, and prayer rooms.
The building is organized around a stepped oasis — a cascading interior landscape rises through three of the five levels, with each step and deck rotated 45 degrees to the façade. Shared facilities for both institutions, including the lobby, cafeteria, and library, are placed within the stepped oasis, with direct light and views toward the existing Ministry building. All offices and classrooms are distributed along the four façades to maximize daylight throughout.




Shaped by the desert climate
The institute's façade is composed of a three-dimensional pattern of triangular panels, each leaning in or out from the vertical plane, all made from local limestone. The geometry is designed to work with Riyadh's harsh climate: the triangles shade one another, and the angle of the composition opens the façade to the north for optimum daylight without direct solar heat gain. Clad in natural stone to harmonize with the existing Ministry building, varied surface grindings across the facets catch light differently across the day, giving the façade a shining appearance.
From the street, the entrance and visa hall are clearly visible — welcoming to visitors and passersby. From within the stepped oasis, views back out through the façade connect occupants to the park and the Ministry building beyond. The exterior envelope works throughout to minimize energy use while carefully controlling lighting levels, acoustics, air temperature, and humidity inside.

Contact
All contactsViggo Haremst
Design Director, International Projects

Business Development Manager, Saudi Arabia
Next project