
Lund, Sweden
2015 - 2023
Forum Medicum
A new medical research center for the Faculty of Medicine at Lund University, Forum Medicum brings together students, researchers, teachers, and the community through a transparent, publicly accessible ground floor that dissolves the boundary between campus and city.
Project details
Previously spread across several buildings, the Faculty of Medicine at Lund University needed a common center. Forum Medicum forms a new gathering point for faculty, students, and researchers, and serves as a generator for the wider development of the campus and for Lund itself.
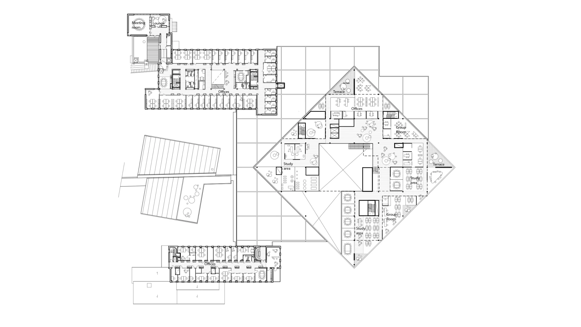
The project involves the transformation and expansion of the faculty across 23,800 m² — encompassing three existing buildings and a new addition — consolidating what was once dispersed into a single, coherent home for medicine at Lund.
At Forum Medicum’s heart is an indoor plaza — publicly accessible, visually open to the street, and home to a café, restaurant, and informal areas for connection. The blurred border between indoor and outdoor spaces creates one connected urban forum, making room for exhibitions and informal learning while remaining open to the people of the city. The ground floor belongs as much to Lund as it does to the university.



01/05
“The atrium space has become the dynamic and unifying heart of the building as we wanted to achieve. The light of the atrium ceiling, the spiral balconies and the warm wooden materials make the room successful, along with the retention of craftsmanship, fine details, and high quality throughout the construction period.”
Ingela Larsson
Design Director


A gathering place for Lund
The indoor plaza is the social and organizational spine of Forum Medicum. A café, a restaurant, and a series of meeting points are arranged along its length, each visually fixed to the outdoor spaces beyond. The transparency of the ground floor facilitates programming and exhibitions, informal learning, and the everyday activities of the faculty — all visible to the people of Lund who pass through or pause inside.
The rotation of the upper building carves out niches and terraces at the edges — sheltered, human-scale spaces for quiet work, rest, or conversation outside. Rather than leftover spaces, they are conceived as places the building makes possible through its unique shape.






Geometric design principles
Above the open forum, a building of steel and wood is suspended — rotated 45 degrees relative to the plaza below. The rotation optimizes the footprint on the busy street below, strengthens the building's identity in its context, and generates the terraces and niches that give Forum Medicum texture at street level. The two geometries in dialogue — the open horizontal forum and the angled mass above — give the building a unique appearance.
Steel and wood were chosen as materials, reflecting the balance between the clinical precision that medical research demands, and human warmth that learning requires.






Contact
All contactsDesign Director
Martin Stenberg
Design Director
Next project




